
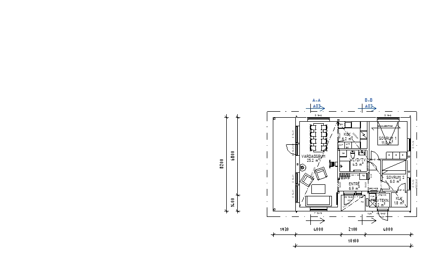
Planritningen visar varje plan sett ovanifrån. Byggnaden måttsätts utvändigt och visar rumsindelning invändigt. I permanentbostäder ska tillgänglighet påvisas, detta kan även gälla tillbyggnader beroende på storlek och funktioner. Fönster, dörrar och fast inredning littereras.
Planritningar ritas vanligast i skala 1:100.
Sektioner visar snittet och hänvisar till sektionsritning.